Redskapsbod DREUX med flatt tak 12m², 44mm:
Leveringsbetingelser:
-
- Gratis levering gis av en eksportbil som ikke krever lossemuligheter. Denne tjenesten er kun tilgjengelig der en 24-tonns tilhenger enkelt kan kjøre inn og ut.
- Hvis du trenger levering gjennom en terminal med lossemuligheter, vennligst send oss en forespørsel.
- Du finner en lenke til listen over soner i hver produktbeskrivelse. Ved bestilling, vennligst sjekk din sone i listen eller kontakt oss, så bekrefter vi din sone for deg. Alle våre priser inkluderer toll og norsk MVA.
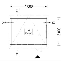
Redskapsbod DREUX 12m² med flatt tak – Din moderne og praktiske oppbevaringsløsning
Redskapsbod DREUX 12m² med flatt tak er et moderne og funksjonelt valg for deg som ønsker en stilren og praktisk oppbevaringsløsning i hagen. Med sitt elegante, flate tak og solide konstruksjon er denne boden både estetisk tiltalende og svært holdbar.
Spesifikasjoner:
| Materiale | Naturlig sibirisk/nordisk furu |
| Ytre dimensjoner (bredde x lengde) | 400cm x 300cm |
| Innvendige dimensjoner (bredde x lengde) | 367cm x 267cm |
| Vegg tykkelse | 44 mm |
| Tak høyde | 209cm |
| Tipp høyde | 239cm |
| Takmateriale | 19 – 20 mm tykke takbord |
| Gulv Materiale | 19 – 20 mm fjer & not-brett |
| Takareal | 16 m² |
| Takoverheng | 45 cm |
| Antall rom | 1 |
| Dør (bredde x høyde) | 85 cm x 192 cm (1 stk) |
| Vinduer (bredde x høyde) | 138 cm x 105 cm (2 stk) |
| Skodder for vinduer | Ingen |
Produktbeskrivelse:
- Dobbeltglas
- Vinduer mv åbner jf. tegninger
- Dørlås med sylinder og nøkkel
- Justerbare hengsler for dører og vinduer
- Spiker og skruer for montering
- Monteringsanvisning
Viktige lenker:
- Før du begynner å bygge, vennligst les instruksjonene nøye og se hvordan tømmerhytta monteres: Video.
- Hvordan installere bitumen takshingel Video
Redskapsbod flatt tak DREUX 12m², 44mm: Prisene inkluderer alle avgifter, og tilbudet inkluderer følgende:






































