Garage Alternativ – Klassisk dobbeltgarasje med ekstra sjarm
Garage Alternativ 36 m² er den ideelle løsningen for deg som trenger plass til to biler. Det tidløse designet gir en klassisk, arkitektonisk stil til hagen. Garasjen er bygget i saktevoksende nordisk nåletre og leveres med solide garasjeporter og et vakkert saltak som gir god beskyttelse mot regn, snø og vind. Flere vinduer gir rikelig med naturlig lys, og en egen sidedør gjør adkomsten enkel og praktisk. Perfekt for biler, verktøy og litt lagringsplass. Garage Alternativ er både funksjonell og elegant – en varig investering for mange år fremover.
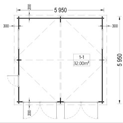
📐 Spesifikasjoner
| Egenskap | Detaljer |
|---|---|
| Grunnareal | 32 m² |
| Materiale | Sertifisert nordisk furu eller gran |
| Takbord | 18–20 mm not og fjær |
| Taktekking | Tilgjengelig som tilvalg (bitumen) |
| Takareal | 41 m² |
| Takvinkel | 13.3° |
| Ytre mål | 595 x 595 cm |
| Indre mål | 566 x 566 cm |
| Veggtykkelse | 44 mm |
| Minimum vegghøyde | 229.5 cm |
| Mønehøyde | 297 cm |
| Dør (B x H) | 1 x 85 x 192 cm (åpning: 70 x 185.5 cm) |
| Garasjeport | Tilgjengelig som tilvalg |
| Vinduer (B x H) | 2 x 138 x 105 cm (åpning: 125 x 92 cm) |
| Antall rom | 1 |
| Volum | 90.6 m³ |
| Gulv | Ikke inkludert |
🔧 Produktdetaljer
- 🪟 Dobbeltglassvindu (2-lags 4 mm glass + 12 mm avstand)
- 🔒 Dørlås med sylinder og nøkkel
- 🔩 Justerbare hengsler for dører og vinduer
- 🧰 Spiker og skruer for montering er inkludert
- 📘 Detaljert monteringsveiledning medfølger
Vi leverer til hele Norge. Fraktkostnader varierer etter adresse og må avklares før bestilling. Når frakten er beregnet, sender vi en egen faktura for frakt og tollklarering.
- 📍 Levering skjer med eksportbil uten losseutstyr
- 🛻 Tilgjengelig der en 24-tonns lastebil kan manøvrere trygt
- 💬 Dersom du trenger terminallevering med losseutstyr, kontakt oss for pristilbud
Kunden er ansvarlig for lossing ved levering.
💰 Importavgifter
Når varene ankommer norsk toll, blir kunden kontaktet for å betale 25 % norsk MVA direkte til Tollvesenet. Dette er ikke inkludert i våre priser.









































