Flatt tak trehytte med terrasse ALTO 31m², 44mm:
Flatt tak trehytten ALTO med terrasse på 31m² kombinerer moderne design med naturlige materialer av høy kvalitet, som sibirisk/nordisk fyr. Denne stilrene hytten er perfekt for deg som ønsker et elegant tilskudd til eiendommen din, med en stor terrasse som gir ekstra plass til avslapning utendørs. ALTO egner seg godt som gjestehus, sommerhytte eller et personlig tilfluktssted med sine praktiske løsninger og komfortable rom.
Leveringsbetingelser:
-
- Gratis levering gis av en eksportbil som ikke krever lossemuligheter. Denne tjenesten er kun tilgjengelig der en 24-tonns tilhenger enkelt kan kjøre inn og ut.
- Hvis du trenger levering gjennom en terminal med lossemuligheter, vennligst send oss en forespørsel.
- Du finner en lenke til listen over soner i hver produktbeskrivelse. Ved bestilling, vennligst sjekk din sone i listen eller kontakt oss, så bekrefter vi din sone for deg. Alle våre priser inkluderer toll og norsk MVA.
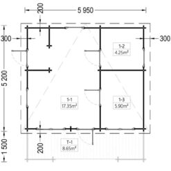
Spesifikasjoner:
| Materiale | Naturlig sibirisk/nordisk furu |
| Ytre dimensjoner (bredde x lengde) | 595 cm x 520 cm + 150 cm terrasse |
| Innvendige dimensjoner (bredde x lengde) | 570 cm x 495 cm + 145,6 cm terrasse |
| Vegg tykkelse | 44 mm, 44 mm + 44 mm |
| Tak høyde | 216 cm |
| Tipp høyde | 270 cm |
| Takmateriale | 19 – 20 mm tykke takbord |
| Gulv Materiale | 19 – 20 mm tykke not- og fjærplater |
| Takareal | 36 m² |
| Takoverheng | 30cm |
| Antall rom | 3 |
| Dør (bredde x høyde) | 85cm x 192cm (4 stk.) |
| Vinduer (bredde x høyde) | 138cm x 105 m (2 stk.) og 90cm x 39cm (3 stk.) |
| Skodder for vinduer | Ingen |
Produktbeskrivelse:
- Dobbeltglas
- Vinduer mv åbner jf. tegninger
- Dørlås med sylinder og nøkkel
- Justerbare hengsler for dører og vinduer
- Spiker og skruer for montering
- Monteringsanvisning
Viktige lenker:
- Før du begynner å bygge, vennligst les instruksjonene nøye og se hvordan tømmerhytta settes sammen: Video
- Hvordan installere bitumen takshingel Video
- Salgs og leveringsbetingelser for DIHC ApS


























