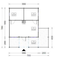
Trehus med hems ANGERS 36m²:
Trehus med hems ANGERS på 36m² er et sjarmerende og funksjonelt bygg laget av naturlig sibirisk/nordisk furu. Dette stilfulle trehuset tilbyr både romslighet og komfort, med fire rom og en romslig hems som skaper ekstra boareal. Den inkluderte verandaen på 14m² gir en koselig utendørsplass for avslapning. Perfekt som fritidsbolig, gjestehus eller et ekstra romslig tilskudd til hagen din.
Leveringsbetingelser:
-
- Gratis levering gis av en eksportbil som ikke krever lossemuligheter. Denne tjenesten er kun tilgjengelig der en 24-tonns tilhenger enkelt kan kjøre inn og ut.
- Hvis du trenger levering gjennom en terminal med lossemuligheter, vennligst send oss en forespørsel.
- Du finner en lenke til listen over soner i hver produktbeskrivelse. Ved bestilling, vennligst sjekk din sone i listen eller kontakt oss, så bekrefter vi din sone for deg. Alle våre priser inkluderer toll og norsk MVA.
Spesifikasjoner:
| Materiale | Naturlig sibirisk/nordisk furu |
| Ytre dimensjoner (bredde x lengde) | 595 cm x 595 cm, 595 cm x 210 cm + 210 cm x 400 cm Veranda |
| Base (kvadrering) | 36 m² + 14 m² |
| Veggtykkelse | 44 mm, 66 mm, 44 mm + 44 mm |
| Takhøjde | 229.5 |
| Tipp høyde | 391.5cm |
| Takmateriale | 18 – 20 mm tykke takbord |
| Gulvmateriale | 18 – 20 mm tykke not- og fjærplater |
| Takareal | 58 m² |
| Takoverheng | 30 cm |
| Antal rum | 4 |
| Døre (bredde x højde) | 85cm x 192cm (3 stk.) |
| Vinduer (bredde x høyde) | 138cm x 105cm (3 stk.), 70cm x 105cm (2 stk.) og 50cm x 50cm (1 stk.) |
| Skodder for vinduer | Ingen |
Produktbeskrivelse:
- Dobbeltglas
- Vinduer mv. åbner jvf. tegninger
- Dørlås med sylinder og nøkkel
- Justerbare hengsler for dører og vinduer
- Spiker og skruer for montering
- Monteringsanvisning
Viktige lenker:
- Før du begynner å bygge, vennligst les instruksjonene nøye og se hvordan tømmerhytta settes sammen: Video.
- Hvordan installere bitumen takshingel Video
- Salgs og leveringsbetingelser for DIHC ApS



























































